当代工业风

Scroll on
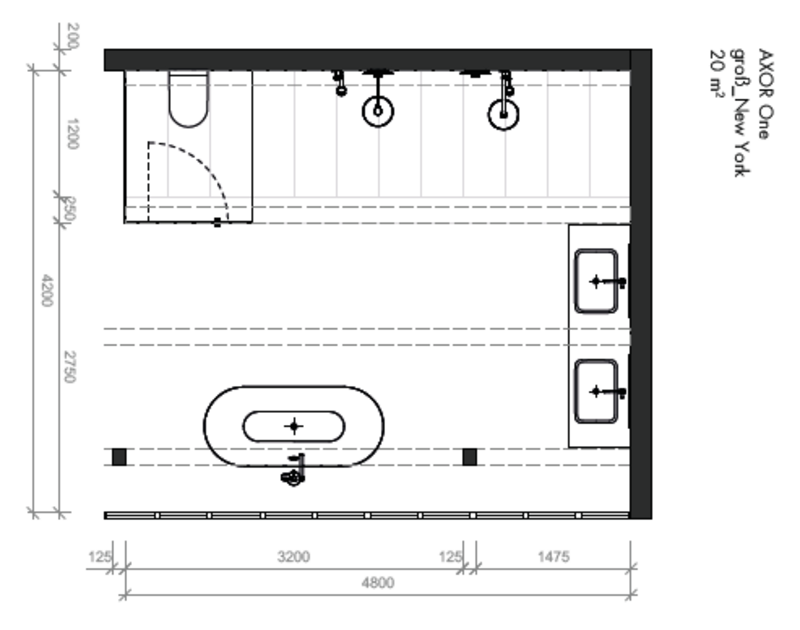
“当代工业风”雅生浴室构想。

具有 Loft 特色的原始美学

  • 面积:20 m²
  • 特点:天然木材,工业风窗户,外露钢梁,裸砖墙体
  • 雅生系列:雅生 One雅生通用圆形 配件
  • 空置废弃厂房的原始工业美学 
  • 采用简约窗框设计,可尽情欣赏开阔的天际线景观
  • 该浴室虽然空间宽敞,但依然属于紧凑型奢华的范例:将有限城市居住面积的一大部分用作浴室,提供休憩场所
带手持花洒的雅生 One 落地式浴缸龙头。

休憩场所

每个人在踏入这一双层复式房间的时候都会大吃一惊,以为来到了纽约市中心的 Loft 公寓。工业风窗户的每一框都嵌入了令人赞叹的城市景观。外露钢梁支撑着天花板和阁楼结构。大幅定制地毯和天花板照明使墙体砖砌结构和瓷砖显得更柔和。中间摆放着现代化独立式浴缸以及具有优雅原型造型的落地式哑光黑色雅生 One 浴缸龙头。浴缸旁边是搭配两个面盆并选用优雅的雅生 One 面盆龙头 260 Select的双位盥洗台——这一切均安装在长型复古边柜上。往下一级便进入宽敞的淋浴区,可在长廊之下一边欣赏开阔的景观一边畅享淋浴体验。 

您可信赖的合作伙伴

发现您所在区域的雅生经销商和门店